| THE INDUSTRIAL RAILWAY RECORD |
© JUNE 1975 |
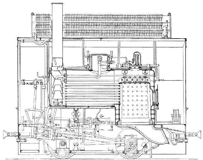
A CONDENSING TRAMWAY LOCOMOTIVE


'This engine, designed and constructed by Merryweather & Sons, Greenwich, is constructed for a gauge of 4 feet 8½ inches, and is fitted with two 7½‑inch diameter by 12‑inch stroke cylinders inside the longitudinal frame-plates. It has two pairs of 28‑inch wheels, coupled, on a base 5 feet long. The cylinders are inclined to clear the coupled axle, and they are fitted with the ordinary shifting link-motion, with reversing gear at each end of the engine. The boiler is of the locomotive type, of mild steel, with a copper fire-box 2 feet 3½ inches square, and 85 brass tubes 1¾ inches in diameter outside, 4 feet long. The heating surface is 181 square feet. The working pressure is 150 lbs per square inch. The ash‑pan is specially designed to prevent the dropping of cinders or the showing of fire. It can be easily cleaned out when required. The ash‑pan damper can be worked from either end of the engine. The wheels are of steel, fitted with rolled steel tyres secured by screws. The exhaust steam is condensed in an air‑condenser, consisting of 404 thin 1‑inch copper tubes, laid in three double tiers 5 feet 10 inches long, making 617 square feet of condensing surface, transversely over the roof. These are fastened by ferules at each end to longitudinal copper passages or ducts, into which the exhaust steam is discharged, and from which the steam is free to pass into the transverse tubes. The ducts are divided by internal partitions into sections in order to direct the flow of steam alternately from one side to the other.
'In order to fulfil the conditions laid down by the Board of Trade, a centrifugal governor is employed, driven by gearing direct from the driving axle, by the action of which the throttle-valve is closed when the speed exceeds eight miles per hour. Should the speed increase, nevertheless, a small steam valve opens automatically for steam to the break-cylinders, by which the break is applied. When the speed is reduced below the assigned limit, the break is thrown off. The steam-break can also be applied by the driver's foot on a treadle. All hand-gear is in duplicate, being at each end of the foot-plate.
'The engine, empty, weighs about 8 tons, and with water and fuel about 9 tons. The engine, it is stated, can take, in ordinary working, 80 passengers on inclines of 1 in 20.'
(From Volume IV of "The Steam Engine: A Treatise on Steam Engines and Boilers" by D.K. Clark, published by Blackie & Son Ltd, London, in 1890. - KPP)
'TRAMWAY LOCOMOTION. — A very successful trial took place on Wednesday of a steam tramcar engine (detached), manufactured by Messrs. Merryweather and Sons, of London, on the line of the Dewsbury, Birstall and Batley Tramway Company.... These engines have been running on one of the Paris lines.' ("Iron," 20th May 1876. — KPP)
'Merryweather's steam-engine is running experimentally in Paris, and the Paris Tramways Company is so well satisfied that they have ordered thirty engines.' ("Iron," 5th August 1876. The same report indicated that the North Metropolitan Tramways Company, London, intended to apply to Parliament for powers to use steam tram engines as soon as one had been approved of by the Board of Trade. - KPP).